Mogale City Local Municipality (Mogale City) Online Auction
has resolved to dispose a portfolio of non-core and non-strategic immovable properties which are not required for the provision of basic services. The objective of the land disposal project is to lower Mogale City’s operating costs and raise capital to fund essential service delivery initiatives. Noordheuwel has been identified as the first batch of properties to be put on sale. We are very excited to present you with the following vacant properties for sale!
Online Auction Opens: 25th June at 09:00 and closes 30th June from 14:00
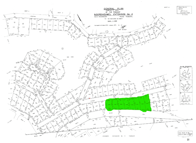
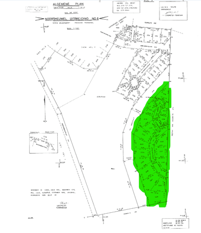
25 Vacant Stands in NoordheuwelViewing Address: Various sites in Noordheuwel, Gauteng.
Viewing Dates: 19 & 20 June, 26 & 27 June (10:00 - 15:30)
Vongani Baloyi - 076 790 6100 ~ vongani@tirhani.co.za
Please note that there will be no staff on the properties for viewing due to the stands being vacant. For more information or assistance in locating a stand, please go to Aviators Retreat B&B (19 Witteberg Street, Noordheuwel). Vongani and Nithu will be stationed there for the duration of viewing in order to provide you with assistance.
Google Maps Link – https://bit.ly/35qExs6
Please make use of the Google Maps link so that you can familiarise yourself with Noordheuwel. All 25 properties have been marked on the map for your convenience. Simply click on a property to see the LOT number, street address and title deed number. Please let us know if you need help using the map or setting up directions to the various locations. We look forward to seeing you on viewing day!
Registration Fee: R10 000 refundable.
Confirmation Period: 14 days confirmation period by the seller.
Deposit on Purchase Price: 15% payable by electronic transfer (EFT).
Guarantees on Balance: 90 days from date of acceptance.
Buyer’s Commission: 10 % plus VAT.
Outstanding Rates and Taxes & Levies: SELLER is liable for all outstanding rates and taxes & levies.
Bidders must adhere to FICA requirements on registration. No cash will be accepted for the auction.
NOTES: This auction is 'With Reserve'. Although you may be the ‘High Bidder’ for a Lot, note that if the Reserve is not met, there is no commitment from the Seller to sell. The sellers shall be entitled to instruct the auctioneer to accept a lower bid. The Auctioneers reserve the right to refuse or accept the bid of any bidder should they be unable to satisfy any of the above notices or the Rules of Auction.
Please note that if you are the successful bidder on more than one lot, you will be invoiced for all your successful bids. You cannot choose or select which lots you will take!
EXTENDED BIDDING: This auction features EXTENDED BIDDING. Any lot with a bid within 2 (TWO) minutes of its scheduled closing time will remain open for bids past its normal close; it will go into extended bidding.
MAX BIDDING: When you place your maximum bid, it will be placed at the reserve price if said max bid exceeds the reserve. If the Max Bid amount is below the reserve, the bid will be placed for the full amount. The 'System' will automatically bid against you at the set increment until reserve is met, at which point the system will stop. If you are the highest bidder, the lot will be sold to you, unless another bidder out bids you.
TECHNICAL ISSUES: In the event there are technical difficulties related to the server, software, Internet or any other online auction-related technologies, Tirhani Auctioneers reserve the right to extend bidding, continue the bidding, or close the bidding. Neither the company providing the software, nor Tirhani Auctioneers shall be held responsible for a missed bid or the failure of the software to function properly for any reason.
To participate in this online auction, complete and submit all required documents by 4PM on the cut-off date on the Tirhani Auctioneers FICA Portal.
By signing the Rules of Auction and Bidder Participation Form, you the bidder/buyer consent and agree to be bound by the Auctioneers General and Specific Rules of Auction in addition to any other conditions specified by the Auctioneer or the Seller. These Rules of Auction are not negotiable, so if you do not agree with them do not register to bid on this auction.
This auction is 'With Reserve'. Although you may be the ‘High Bidder’ for a Lot, note that if the Reserve is not met, there is no commitment from the Seller to sell. Tirhani Auctioneers reserve the right to extend bidding, continue the bidding, or close the bidding. Control of the auction shall be entirely managed by the auctioneer, who has the sole right to regulate the bidding process and control the bid increments. The auction will be conducted per rising bid in South African Rands.


